一、项目名称
佛坪两河口高新技术产业孵化基地项目
二、建设地点
佛坪县长角坝镇教场坝村
三、技术经济指标
|
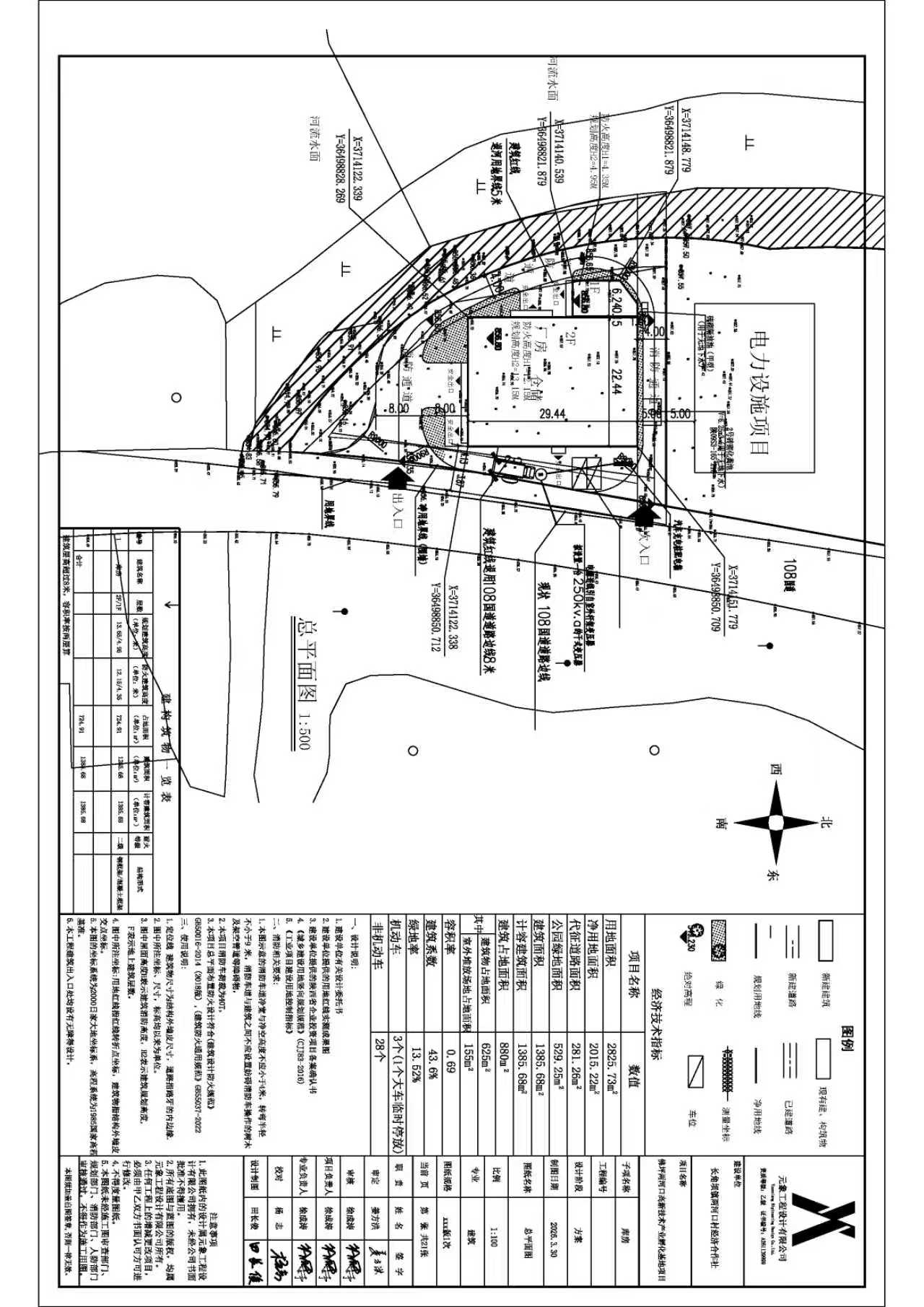
规划用地净面积 |
2015.22㎡ |
总建筑面积 |
1385.68㎡ |
|
|
规划用地性质 |
二类物流仓储用地 |
容积率 |
0.69 |
|
|
建筑占地面积 |
880㎡ |
绿地率 |
13.52% |
|
|
其中 |
建筑物占地面积 |
625㎡ |
建筑高度 |
厂房13.65米 附属用房4.95米 |
|
|
室外堆场占地面积 |
155㎡ |
机动车 停车位 |
3辆 |
|
建筑密度 |
43.6% |
非机动车 停车位 |
28辆 |
|
四、公布时间
2026年3月30日
五、联系电话
0916-2976639
